MURAT SINER Négociateur
Télécharger la fiche
Exclusivité

Local commercial 400 m²

Melun (77000)
495 000 € Référence VCO10005615

A propos de ce bien

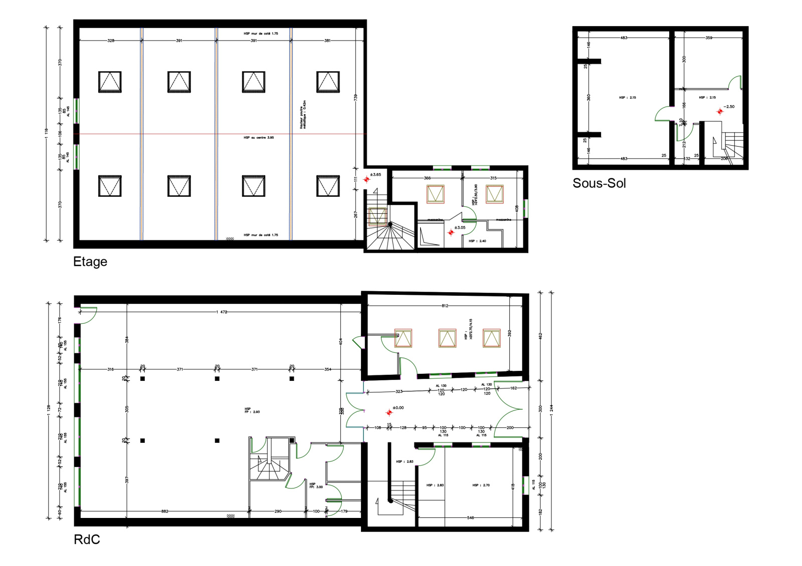
MELUN proche gare : Trois Bâtiments Professionnels à Découvrir !

Bâtiment 1 : À votre gauche en entrant, découvrez un espace polyvalent sur deux niveaux. Le rez-de-chaussée offre une pièce spacieuse et un WC, tandis que l’étage propose une autre pièce et une salle d’eau. Idéal pour des bureaux ou un petit atelier.

Bâtiment 2 : À votre droite, un bâtiment accueillant avec une pièce au rez-de-chaussée, un coin cuisine pratique et une salle d’eau avec WC. Un espace parfait pour une petite entreprise ou un studio.

Bâtiment 3 : Situé au fond entre le bâtiment 1 et 2, ce bâtiment offre un sous-sol partiellement aménagé en deux pièces, un rez-de-chaussée avec une grande pièce, un coin repos et 3 WC, et un étage avec une grande pièce partiellement aménagée. Un espace idéal pour une entreprise en pleine croissance.

Et une charmante cour intérieure pour des pauses en plein air, le tout clos de murs pour votre tranquillité.

N’attendez plus, ces bâtiments professionnels n’attendent que votre projet ! Contactez-nous dès maintenant pour une visite.

Caractéristiques de ce bien

Activités

  • Type de transaction Local commercial

Agencement

  • Superficie m2 400 m²
  • Vue dégagée

Equipements

  • Chauffage individuel : convecteur (electrique)

Secteur

  • Code postal 77000
  • Ville Melun

Agencement extérieur

  • Nombre d'étage 1

Calcul des mensualités

* Champs obligatoires

Diagnostics énergétiques

DPE
GES
DPE ANCIENNE VERSION

Informations financières

Prix de vente honoraires inclus 495 000 €